牛込箪笥地域センター
大切な方とのお別れ、そのお時間を出来る限り可能にした
新宿区内|寺院(貸し斎場) 牛込箪笥地域センターのご案内
牛込箪笥地域センターの詳細
| 住所 | 東京都新宿区箪笥町15番地 | ||
|---|---|---|---|
| 電話 | 03-3260-3677 | ||
| アクセス | 地下鉄大江戸線「牛込神楽坂」徒歩0分 地下鉄東西線「神楽坂駅」徒歩10分 | ||
| 式場費 | ■2日間で、42,700円(税込み) | ||
| 宿泊 | お泊まりなどは一切できません。 | ||
| 駐車場 | 台数制限あり | 外装設備 | テントなど設置不可。 |
| お葬式 | |||
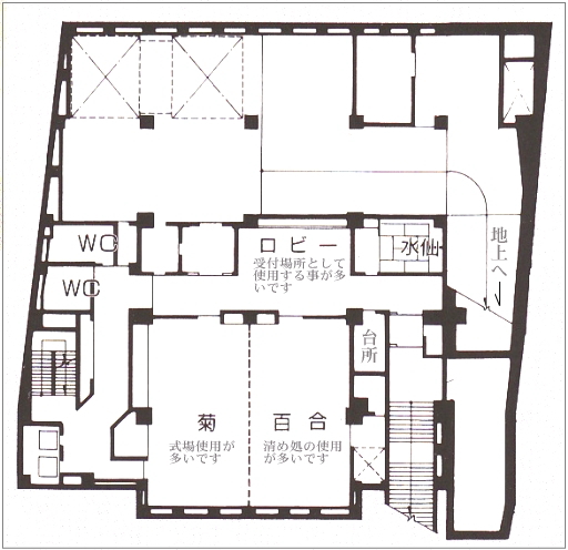
牛込箪笥地域センターの案内図
式場申込み詳細
使用できる方は故人または喪主の方が新宿区民の方
【受付期間】
・原則、使用日の前日(前日が休館日はその前日迄)
【受付時間】
・休館日を除く、午前9時から午後5時迄
【申込方法】
・先着順。申請書に必要事項を記入し使用料金を支払います。
電話での申込みはできません。
【使用時間】
・通夜及び告別式としての使用時間は下記のとおりです。
●通 夜 : 午後1時から午後9時45分迄
●告別式 : 午前9時から午後5時迄
(通夜~告別式の間、ご遺体はお預かりできます。)
【使用に際して】
・駐車場は関係業者含め4台迄
・ゴミの持ち帰りの徹底
・葬儀社の方、使用方法、設営時間など警備担当と十分に打合せを行なってください。



